- ◆部材
-
|
マンホールの深さ、流入管の落差・角度等の情報を入力すれば、継ぎ手が削孔にかからないよう、部材の自動組み立てを行います(副管も同様に考慮します)。
製品名称・形状,付属品はお客様で設定することができます。
|
|
▲メニューに戻る
|
- ◆調整
-
| 自動組み立て後の部材の組合せは、手動で自由に変更できます。また、可能な全ての組み合わせを確認し、利用することもできます。 |
  |
|
▲メニューに戻る
|
- ◆ステップ
-
| ステップ位置や本数を自在に変更できます。種類,幅,角度,間隔について図示します。 |
 |
|
▲メニューに戻る
|
- ◆削孔
-
| 管底高,口径,余裕幅,角度,可とう継手に対応します。工場削孔依頼書にて確認できます。 |
 |
|
▲メニューに戻る
|
- ◆重量
-
| 個々の重量を図示し、施工性をチェックできます。また、1基の部材総重量も図示します。 |
|
▲メニューに戻る
|
- ◆図表
-
|
インバートコンクリート,下部のボックスカルバートの作図を行います。
マンホール計算書,数量集計表,工場削孔依頼書を作成します。
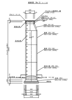
組立図(平面図・縦断図・横断図・ステップ・削孔表・重量表)を自動配置します。
|
|
|
▲メニューに戻る
|
- ◆形状
-
|
マンホールの形状は円形が対象です。
※その他の形状につきましては、弊社までお問い合わせ下さい。
|
|
▲メニューに戻る
|
- ◆CADデータ
-
CAD製図基準のレイヤー名に、一括変換が可能です。
-
DXFデータ及び、SXF(P21)形式、簡易形式であるSFC形式のデータ出力が可能です。
|
▲メニューに戻る
|